「とうべつ学園」を見てきました。第2弾

施設一体型義務教育学校の「とうべつ学園」を見学して来たのが11月9日。第2弾が遅れました。

来年4月に開校を迎える「とうべつ学園」では10月に保護者説明会が開かれていました。

保護者説明会

当然と言えば、当然な時期です。市教委も10月に行われた「小中学校統合準備委員会」でとうべつ学園の基本設計書を参考資料として配布しています。

さらに詳しく当別町の保護者説明会で校舎案内が説明されていましたので紹介します。

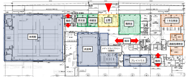
まずは一階です。

とうべつ学園3

一階は普通学級として1年生の2教室しかありません。したの方にある「プレイハウス」は学童保育のようです。

続いて2階

とうべつ学園2

各学年2学級ずつ。校舎の中央に大きな階段が吹き抜け状にあって、体育館にはランニングコースがあります。

最後に3階

とうべつ学園1

小中一貫の義務教育学校ですから9年生の教室がありますネ。

砂川市の場合、市教委は義務教育学校を設置するまでは決定していますが、施設一体型なのか現在の砂川中校舎を残し小学校を隣接させるのか決まっていません。

そこで、気になるのが「とうべつ学園」の建設費を含めた事業費です。前回も概要は書きましたが総事業費「59.7億円」。それで砂川市の義務教育学校が建つのか・・・。

長くなりそうなので「第3弾」にします。