本日は朝の除雪が久し振りにありませんでした。ゆっくりコーヒーが飲めてちょっと幸せ感じました。
1月の第3金曜日(16日)なので地域健康サロン「ニコニコ広場」の日でした。
今日はいきいき運動をする前に「InBody(インボディ)」による測定との事なのですが、何のことだか分からないまま皆さん集まりました。

これまでは体力測定をしてきましたが、今年からは身長、握力を測定してから、上の写真の手前の器械(インボディ)に裸足になって測定です。
この「インボディ」をネットで調べてみると、体重、筋肉量、体成分分析などなど計測できるものらしいです。
今日は結果表はもらわず、後日のニコニコ広場の時にリハビリの先生から説明を受けるとのことでした。

測定が終わると、いつものように「いきいき運動推進員」さんによるご指導で、1時間弱体を動かしました。今日は奥さんが風邪ひき、冬期間は来られないなどの理由で少なめのニコニコ広場です。
先日のNHKTVの番組で「健康」についてやっていました。
いきいき運動でやっている片足立ち、スクワットなど体力維持に良い運動が全て入っているのを確認しましたので、改めて月に一回だけではなく日常で継続しようと思いましたが、続くかな・・・。
今朝も除雪作業からです。ここのところ雪が降り続いていて、そろそろ小休止が欲しいところです。
本日は15日で砂川神社の「どんど焼き」に行って来ました。

「どんど焼き」とは小正月(こしょうがつ=1月15日)の行事で、正月の松飾り・注連縄(しめなわ)・書き初めなどを家々から持ち寄り、一箇所に積み上げて燃やすという、日本全国に伝わるお正月の火祭り行事です。神事から始まったのではありましょうが、現在では宗教的意味あいは少なくなっています。(ネットより引用)
最近はどんど焼きの傍に行くことは出来なくなりましたので、火の近くでお参りする姿は見られません。

しかし、どんど焼きの帰りに神社で手を合わせる方々は多く、吹雪状態でしたがたくさん来られていました。
私も今年一年の無病息災を願ってお参りしてきました。
今朝はかなり雪が積もって、除雪機で除雪を1時間30分、疲れました。
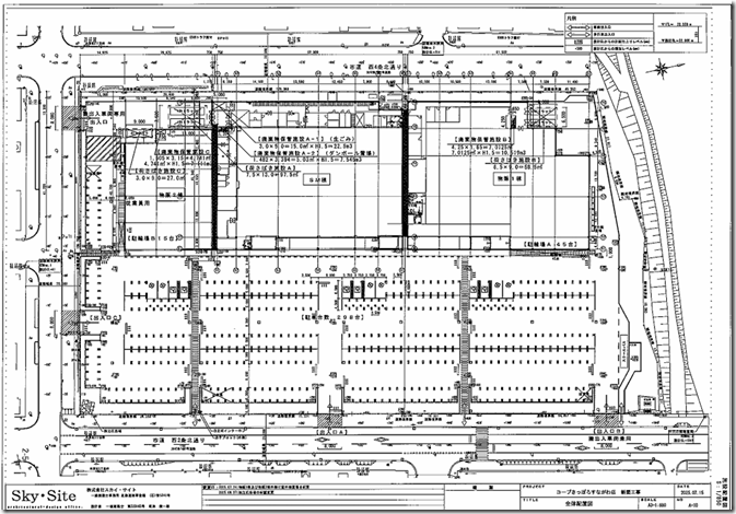
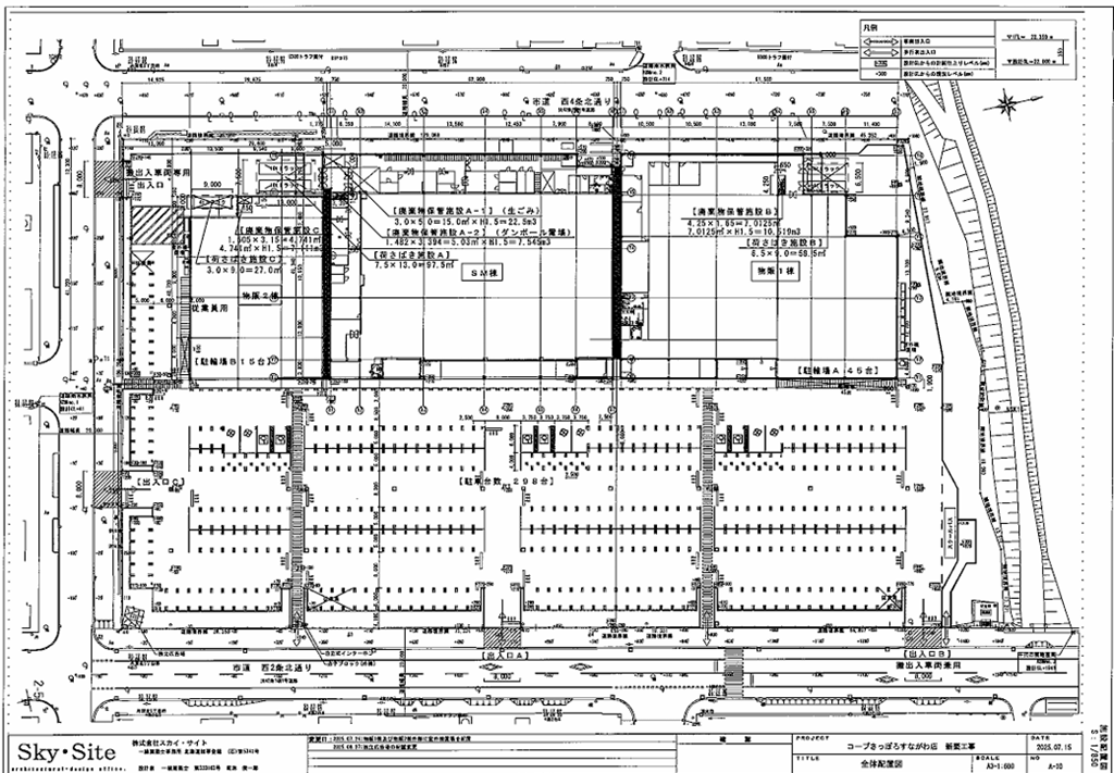
さて、北海道のHPを昨日見て、旧中央小跡地に移転予定の「コープさっぽろ すながわ店」の大規模小売店舗届出書を12月に提出していたのが分かりました。(道の公表は9日付け)

上の写真は昨年11月撮影の基礎工事を行っていた「新 コープさっぽろ すながわ店」の現場です。
届出書を見ると、店舗の総面積は5,449㎡で、以下のような構成となっています。
下の図面は届出書にある全体配置図です。

- SM(スーパーマーケット)棟
- 店舗面積:2,169.695㎡
- 主な販売品目:食料品全般、医薬品、家庭用消耗品、その他
- 営業時間:午前7時00分~午後9時50分
- 物販1棟
- テナント1:店舗面積1,071.551㎡、販売品目は日用消耗品、雑貨その他
- テナント2:店舗面積994.273㎡、販売品目は日用消耗品、雑貨その他
- 共用通路:店舗面積177.202㎡
- 物販2棟
テナント3:店舗面積1,036.337㎡、販売品目は医薬品、化粧品その他
また、施設内には駐車場(298台収容)、駐輪場(60台収容)が設置されるようになっています。
もう少し、詳しい内容が知りたくてネット検索していると、北海道経済のニュースサイト「リアルエコノミー」に以下のような記事が掲載されていました。リアルエコノミーの『「コープさっぽろ砂川店」移転新築、「無印良品」など商業集積』にリンクします。
施設配置は、北から物販1棟、SM棟、物販2棟とし、物販1棟とSM棟を結ぶ共用通路を設ける。SM棟にコープさっぽろが入り、物販1棟には「無印良品」と「トドックステーション」、物販2棟はドラッグストアが予定されている。
また、届出書に大規模小売店舗の新設の日は令和8年8月23日と書かれていますが、建物が完成する日か営業開始の日か分かりません。
施設配置図をよく見ると「スクールバスのバス停」との表示もあります。
大規模小売店舗立地法には、大規模小売店舗を新設するとき及び周辺環境に影響を及ぼす変更の事実があるときには、届出をした者が届出日から2カ月以内に周辺住民を対象に計画内容等の説明会を開催するよう定められていますので、その内、お知らせがあるのではないでしょうか。
砂川市内には北から「トライアル」、「コメリ」、「コープさっぽろ」、「ホクレンショップFoodFarm」、「スーパー・アークス」、「ホーマック」と人口の割からすると大型店激戦地と言えるかもしれません。
今朝は結構、雪が積もっていました。連休明けの火曜日は午前10時から正副議長会議でした。
朝の除雪の時、危ない目に二度会いました。道路の除雪車が入った後に雪が積もって、ツルツル路面が分からず、ママさんダンプで転倒。イイ倒れ方をしたので事なきを得ました。
二度目は、もう少し危険で、ヤマハの除雪機を出して除雪をしましたが、バックの時にツルツル路面で又、滑って転びました。バックのまま除雪機が迫ってきて、慌てて処置ができたので、ここも事なきを得ました。皆さん、除雪の際は気を付けましょう!
無事に市役所に着いて、市役所4階から見える市立病院の駐車場は満車状態。

3連休明けなので混んでいるのでしょうか。立体駐車場の屋上階も満車で難しいUターンをしながら別の場所を探す車も出ていました。冬期間は特に厳しい状況が続きます。
〈群馬県前橋市長選挙〉
昨日が投開票日だった群馬県前橋市長選挙の結果が下の表。(前橋市から借用)

議会の不信任決議を受け自ら辞職し、市長選に立候補した小川晶氏が1万票の差をつけて再選されました。
もしも、この市長が男性だったら再選はとても無理だったのではないかと思われます。それにしても、辞職した前橋市の関係職員が気の毒です。
昨晩は帰れるか心配ながら羽田空港を出ましたが、無事に帰宅できました。
昨日(11日)は砂川市の「第78回 はたちの集い」でした。本来なら、来賓参加で写真の掲載だったのですが、私の実姉が亡くなり、10日、11日と横浜市戸塚区に行きました。
6歳離れた姉でした。歳が離れているせいか小さい時からとても可愛がってもらった良い姉でしたが、84年の生涯を閉じました。
姉が結婚して、ずっと昔に横浜市戸塚区に行った時の東海道線戸塚駅は、まだ田舎の駅って感じでした。
ところが下の写真です。

駅前の整備がすっかり出来上がってビルの3階部分で空中歩道の大規模なものが作られていました。この歩道の下にバスターミナルや道路があります。(歩行者が向かっている方に駅)

空中歩道から駅前にできた戸塚区総合庁舎に入る所ですが、区役所の3階部分です。
砂川市の庁舎建設や市立病院建設の時、市庁舎を今の「すないる」の所に建てて、駅の自由通路や市役所、市立病院を空中歩道で繋ぐっていう、割としっかりした「絵」も見たことがありますが、夢のまた夢でした。
予想だにしなかった事が起こった年末、年始でしたが、そろそろ少し落ち着いて事に当たりたいです。
道新WEBのちょっと前の記事です。私も団塊の世代のど真ん中、後期高齢者の身ですから、私たちの世代は『何でこんなにイジメられるのだろう・・・』と思ってしまいます。
厚労省は2027年の介護保険制度改定に向け、介護保険サービス利用者の自己負担を現在1割のところ、2割の範囲を広げることを検討しているらしい。

上のグラフは道新WEBから借りました。
これから生き抜いていく若い人たちに負担を掛けてはならないのはよく分かっています。しかし、高齢者も厳しいのです。
私たち団塊の世代は第2時世界大戦の戦後まもなく産まれた世代で、人口が激増しました。したがって、小さな時から厳しい競争に晒されて生きてきました。
学生時代は人数が多いので教室にビッシリ、10クラス以上の学年が普通でした。大学入試も狭き門で大変な時代。良さといえば人数が多いの人手不足の解消にはなったでしょう。しかし、ここでも競争、競争でした。
年老いても人口の多さで、いつも注目を集める身が団塊の世代で、居なくなるまで続くのでしょう。
上のグラフを改めて見てみましょう。今回、手を付けようとしている介護保険の自己負担2割の人たち、全体の4.6%です。しかも年収280万円以上。
それでも1割負担の年収280万円未満の人が91.8%なのです。年収280万円は月収23万円。厳しい老後ですね。
7日の新年交礼会、飯澤市長の年頭の挨拶で触れられていた『「㈱シロ」が日経新聞に掲載されていました。』が気になってネットで探してみました。
ありました。

上の写真は日経新聞のネット版です。『「SHIRO」今井浩恵会長、創業地・北海道砂川でホテル 交流拠点に』にリンクします。
そして、同じく日経新聞のローカルビジネスサテライトに動画で砂川市と共に紹介されていました。(下の写真)

こちらも『化粧品「SHIRO」異色の北海道工場に年30万人 町をローカルな聖地に』にリンクします。
いろいろな場面で砂川市が紹介されるのは、とても良いことですネ。
本日の最低気温は-15.8℃でした。除雪車来ましたが、私の除雪はありません。
さて、砂川市の社会福祉課から親展の封筒が郵送されてきました。

4枚の書類と返信用の封筒が入っています。
私の場合は砂川市の物価高騰に対する支援の内、70歳以上の者で構成され、令和7年度住民税所得割が課税されている者の属する世帯主に支給される「高齢者世帯特別給付金」で、私と妻で2万円の給付です。申請は不要で、1月29日に振り込まれる予定。
返信封筒は口座変更、受給辞退を希望する場合に上の写真の一番下の書類に記入して郵送するのに使います。写真には無い記入例も同封されていました。
なお、12月18日の臨時議会で決まった、砂川市の物価高対応メニューは(高齢者世帯特別給付金を除く)
- 国の物価高対応子育て応援手当支給事業(3,691万1千円)は18歳以下の児童手当が支給されている世帯に一人当たり2万円が支給されますが、砂川市は独自策として1万円を上乗せします。子育て世帯は子ども一人当たり3万円の支給です。
- 住民税非課税世帯に特別給付金支給事業は一人当たり2万円が支給されます。
- 住民税均等割のみ課税世帯に特別給付金支給事業として、一人当たり2万円が支給されます。
対象世帯にすでに郵送されているのか分かりませんが、私の所に来ましたので順次実施されることと思われます。
今朝は-4.8℃で日中はプラスの温度になって、少し楽です。
さて、昨日は午後6時から地域交流センター「ゆう」の大ホールで砂川市の新年交礼会が開催されました。

砂川市の場合、砂川市と砂川商工会議所、砂川建設協会の共催で開かれます。上の写真は当日配られたプログラムです。

上の写真は飯澤市長による年頭の挨拶。挨拶の内容を失礼ながら箇条書きにします。
- クマ出没に関する話
- 駅前交流施設「すないる」は8ヵ月で5万5千人が来場
- ㈱シロのパークホテルのリニューアルは本年秋には完成。今井会長が日経新聞に掲載されていた。
- 4月には「砂川学園」が開校。児童・生徒数は780人で道内最大の義務教育学校になる
- 産休明けのお母さん方の居場所づくり。0歳児保育の拡充
- 市立病院の病床を87床削減したので、国の補助を要望している
- 開業医誘致の条例により問い合わせが複数ある
- ゆうは今年20周年を迎える
- 砂川火力発電所廃止に伴い、流雪溝が続けられるように要望
- JR砂川駅のエレベーター設置について、早期実現を要望している
このような内容でした。

多比良議長の乾杯の発声の後、上の写真のように参加者で懇談をし、参加者名簿を数えると243名でした。
今年は60年に一度の「丙午」の年。強力なエネルギーが満ちる、エネルギッシュな年と言われています。砂川市にとっても活力ある一年になることを願っています。
今朝はスカッと晴れて気温が下がりました。最低気温は-12.6℃で、外に出ると肌がピリッとします。

上の写真は今朝の樺戸連山ですが、クッキリ、はっきり見えています。ちょっと電柱、電線が多いのが残念でした。
さて、本来であれば本日の更新は昨日開催された「出初式」の報告ですが、多分、議員になってから初めてではないかと思いますが欠席したため写真がありません。
と言うのも、3ヵ月前の市立病院循環器科の受診の時、『次は1月6日です』と言われて、何も考えずに『はい!』と答えてしまいました。
開始時間もぴったり同じで、受診の変更はし辛く市立病院循環器科の受診をしました。市立病院も来年度は組織的な変化がありそうな予感。
出初式は参加できませんでしたが、砂川消防職団員の皆さんには、これからも砂川市民の皆さんの生命、財産を火災、災害から守る活動よろしくお願い致します。
次のページへ »