第3回 市庁舎建設検討審議会の傍聴

DSC_0338

本日、午後6時から開催された「第3回 庁舎建設検討審議会」を傍聴して来ました。写真は始まってすぐですが、欠席が目立ちます。(遅れてこられた方が一人いました)

最初のうちは暖房が入っていて大会議室も暖かかったのですが、途中から寒くなり、私はダウンを着たままで傍聴していました。暖房が切れた後は、ポータブルのストーブでもないと委員の皆さんも寒かったと思います。

審議会は午後8時52分まで、休憩もなく皆さん大変ご苦労様でした。

議事は

・第2回審議会意見内容

・複合化検討施設の概要

・新庁舎の建設場所

  1. 防災拠点について
  2. 建設候補地の比較
  3. 財政負担の試算

・その他

  1. ワーキンググループの設置について
  2. 次回審議会の日程について

このような内容でした。

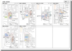
本日、特に注目されたのは候補地6ヵ所の概略配置イメージ図と共に建設概算事業費が示されたことです。

こうほち全体

上の写真は候補地6ヵ所で庁舎を建てる場合の配置イメージを表わしたものです。事業費としては35億円~56億円の概算が示されています。

詳細も資料として傍聴者にも配布されましたので、明日にでも紹介したいと思っています。

また、今後の進め方としてはワーキンググループが設置され、会長と6名のメンバーが事務局から指名されていますが、このメンバーは固定されるものではないそうです。

次回は1月26日(木)午後6時。ワーキンググループは1月18日に予定されています。

これまでの審議会スケジュールでは来年2月に基本構想案の答申(案)が作成される予定ですが、かなり厳しいスケジュールなような気がします。